


Materialisierung Beton und Holz

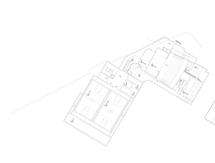
öffentliche Bereiche: Auditorium und Doppelsporthalle mit eigenen Zugang
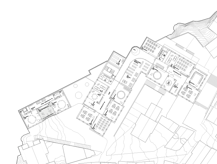
multifunktionale Bereiche am Eingangsbereich Schule

Klassenbereiche Primaschule Walka


Klassenraum
Mensa

Kindergarten und Kinderhort

Einbindung in den Grünraum und Hang

Geschoss 5
Geschoss 3 mit Bibliothek im Gelenk

Geschoss 2 mit Mensa im Gelenk

Geschoss Eingang Schule

Eingangsgeschoss Auitorium und Halle

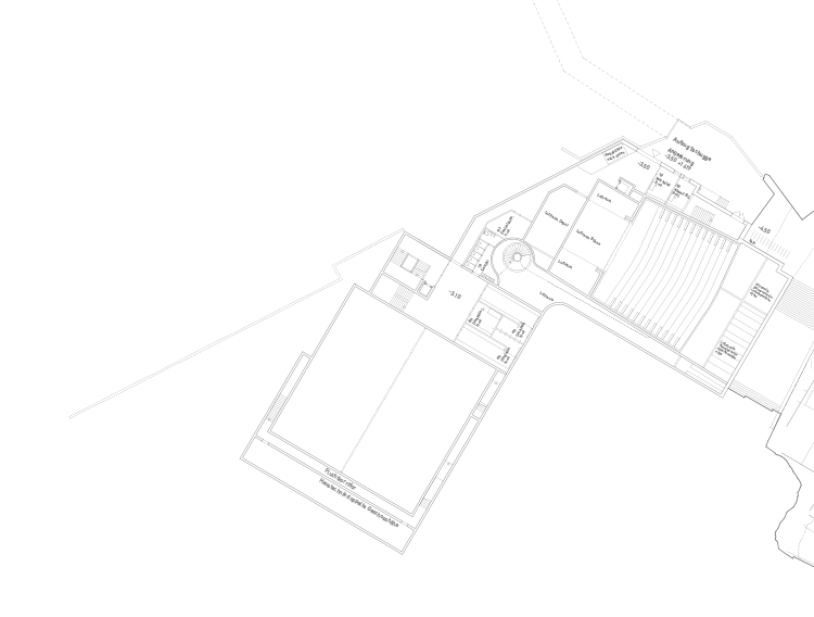
Untergeschoss mit Halle und Auditorium

copyright 2026 © alltag.org
all rights reserved